Добро пожаловать на http://vipplan.ru

Випплан Мирный - это тысячи проектов домов в нашем каталоге!

Вы всегда сможете найти для себя проект дома вашей мечты! Даже если этого не случилось, мы готовы в любую минуту предложить проект индивидуального дома.

Забыли пароль?
Вы еще не регистрировались?

Перейдите по ссылке ниже на страницу регистрации.

Регистрация...

Внимание!!!

В проектную документацию могут быть внесены изменения любой сложности, в соответствии в Вашими пожеланиями!

Полезные статьи

Типы и разновидности кровли

Кровля состоит из сплошного настила, стяжки и обрешетки, поддерживающих стропила и несколько слоев изоляции, призванных уберечь кровельное пространство от негативного воздействия пара и влаги....

Где копать колодец?

Водоснабжение за городом - Мирный всегда было проблематичным. При отсутствии центрального водоснабжения остается только один выход – выкопать колодец. Водоносный пласт есть не везде. Как же определить, где копать колодец?...

Проекты домов и коттеджей > Каталог проектов домов > Проект дома с мансардой на склоне Vg2271

Проект дома с мансардой на склоне Vg2271

Проект дома с мансардой на склоне
Зарегистрируйтесь

Проект № Vg2271


Техническое описание
Общая площадь: 54.53 м2
Жилая площадь: 36.17 м2
Высота здания: 7.58 м
Размеры дома: 10.04м×6.7м
Кол-во комнат: 3
Цокольный этаж: нет
Гараж: нет
Мансарда: есть

Kонструкция
Фундамент: ленточный монолитный ж/б
Перекрытия: монолитные ж/б
Материал стен: Газобетон

Архитектурный раздел
Конструктивный раздел
АР+КР - 40 000 (Со скидкой 20%)
Проект индивидуального одноэтажного жилого дома с мансардой с размерами здания 10,04 x 6,70 м. Наружная отделка здания – облицовочный кирпич. Фундамент – ленточный монолитный ж/б. Наружные стены – газобетонный блок с утеплителем, воздушным зазором и отделкой облицовочным кирпичом. Перегородки – забутовочный кирпич. Пол 1 этажа – пол по грунту. Межэтажное перекрытие – монолитное ж/б. Крыша – двускатная. Кровля – металлочерепица. Окна – металлопластиковые. Лестница – металлическая.
Генплан застройки участка / Паспорт проекта 7000 руб / 10000 руб
Инженерный раздел (полный) 50000 руб
Смета на строительство 25000 руб
Теплотехнический расчет материалов стен Бесплатно
Стоимость проекта со незначительнми изменениями 48600 руб
Стоимость проекта со средними изменениями* 52800 руб
Стоимость проекта со значительными изменениями** 53900 руб

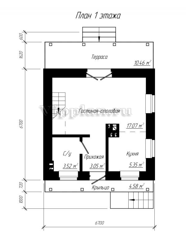
План первого этажа


С/у — 3,52 кв м
Прихожая — 30,05 кв м
Кухня — 5,35 кв м
Гостиная — 17,07 кв м
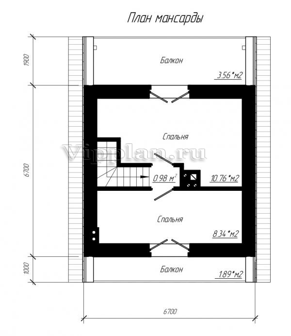
Мансарда

План мансардного этажа



Проект дома с мансардой на склоне Проект дома с мансардой на склоне Проект дома с мансардой на склоне Проект дома с мансардой на склоне

Модификации проектов

Внесение изменений и привязка к участку строительства

В любой из проектов от компании VIPplan - Мирный по вашему желанию могут быть внесены изменения в материалы стен, материалы наружной отделки дома, а также будет произведена адаптация проекта под конкретный регион строительства (с учетом грунтов региона, геологических особенностей вашего участка и местных климатических условий) - БЕСПЛАТНО !!! (кроме проектов со скидкой и проектов наших партнеров).

Любой из проектов, размещенных на сайте mirnyiy.vipplan.ru мы можем выполнить из требуемых вам строительных материалов: ячеистый бетон (газобетон, пеноблок), керамоблок, кирпич, шлакоблок, бетонный блок, дерево (брус, клееный брус), каркасная технология (деревянный каркас, металлокаркас (ЛСТК)).

Фасад дома и его наружную отделку так же возможно выполнить с применением различных облицовочных материалов: структурной штукатурки, (с утеплителем и без), сайдингом (пластиковый или металлосайдинг), фиброплитами, кирпича.

 
6 Избранные
проекты

Доставка проектов по России: Москва (Московская область), Санкт-Петербург (Ленинградская область), Краснодар, Ростов-на-Дону, Ставрополь, Сочи, Волгоград, Новосибирск, Белгород, Брянск, Воронеж, Саратов, Хабаровск, Астрахань, Нальчик, Владикавказ, Екатеринбург, Тюмень, Самара, Нижний Новгород, Казань, Пермь, Уфа, Челябинск, Красноярск, Ханты-Мансийск, Иркутск, Курган, Оренбург, Омск, Томск, Барнаул, Новокузнецк, Кемерово, Абакан, Чита, Якутск, Южно-Сахалинск, Петропавловск-Камчатский и страны ближнего зарубежья: Белоруссия, Украина, Казахстан